Cologno Monzese ufficio

mq 330 primo piano

doppio ascensore

canone annuo € 40.000 + IVA

spese condominiali  annue € 9600 + IVA ( inclusi riscaldamento e raffrescamento)

classe energetica F

Ufficio a 900 metri dalla Metropolitana fermata Cologno Nord linea verde, di mq 330 al primo piano servito da doppio ascensore. All'interno di una palazzina ad uso ufficio ristrutturata nel 2022, l'ufficio si presenta pronto per essere utilizzato, con suddivisioni in cartongesso eventualmente modificabili in base alle proprie esigenze lavorative. Sono presenti impianto elettrico certificato ( completo di luci a led di elegante impatto estetico), cablaggio, impianto di riscaldamento e raffrescamento centralizzati le cui spese sono incluse nelle condominiali. Al piano interrato, su richiesta, sono presenti dei locali adatti come sale riunioni oppure depositi. Inclusi nel canone un posto auto in garage e due esterni.

L'ufficio è adatto a chi cerca una soluzione di immagine, con la comodità della metropolitana vicina e della prossimità all'accesso alla Tangenziale Est.

Milano viale Certosa ufficio

ufficio mq 312 terzo piano

due ascensori

riscaldamento e raffrescamento centralizzato

canone mensile € 5000 + IVA

spese condominiali mensili € 880 + IVA incluse riscaldamento e raffrescamento

classe energetica D

Ufficio mq 312 in palazzina direzionale ad esclusivo uso ufficio, posto al terzo piano con due ascensori, attualmente suddiviso in 8 locali ma eventualmente facilmente modulabile alle proprie esigenze lavorative, servizio per disabili, cablato, riscaldamento e raffrescamento centralizzato, portineria al mattino, un posto auto incluso nel canone. .Servizio portineria.

Viale Certosa, in posizione molto comoda per raggiungere le tangenziali in meno di 5 minuti, diversi collegamenti di superficie per muoversi in città, negozi, ristoranti e servizi di ogni genere per soddisfare ogni tipo di esigenza.

Un ufficio moderno pronto per essere utlizzato e adattabile a ogni tipo di organizzazione lavorativa.

Ulteriore punto di forza: la luminosità dei locali grazie alle ampie finestrature.

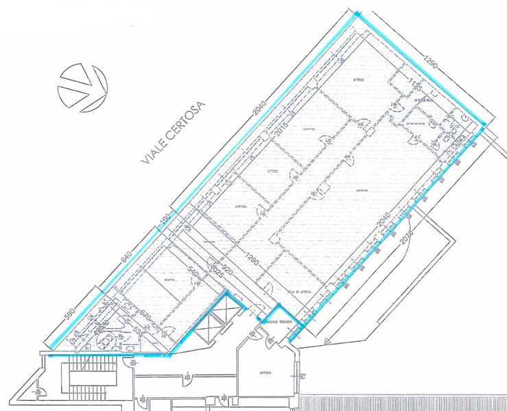
Milano via Cormons zona Certosa - ufficio

ufficio mq 400 1° piano

riscaldamento e raffrescamento centralizzato

cablato e area ced

canone € 70.000 annui + IVA

spese cond. € 12.000 annui + IVA

classe energetica D

A breve distanza da viale Certosa affittiamo un ufficio suddiviso in dieci locali con eleganti pareti mobili in vetro, posto al primo piano con ascensore e ubicato in palazzina direzionale.
L'immobile è dotato di riscaldamento e raffrescamento centralizzato. L'impianto elettrico e di cablaggio sono di recente installazione. Lo stato manutentivo è molto buono e l'ufficio risulta moderno e adattabile per ogni esigenza lavorativa. Presente una terrazza per i momenti di relax. Posti auto in cortile sono disponibili a parte rispetto al canone richiesto. Nel raggio di 250 mt. Troviamo le fermate del tram n. ro 14 e bus n. ro 40. Tangenziali ed autostrade facilmente raggiungibili.

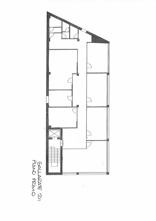
Milano via Gallarate - ufficio

Ufficio mq 300 al primo piano

canone annuo € 50.000 + IVA

spese condominiali annue € 4500 + IVA ( a cui aggiungere riscaldamento e raffrescamento )

classe energetica C 

A breve distanza da viale Certosa affittiamo un ufficio suddiviso in sette locali con eleganti pareti mobili in vetro, posto al primo piano ubicato in palazzina direzionale.
L'immobile è dotato di riscaldamento e raffrescamento autonomo. L'impianto elettrico e di cablaggio sono di recente installazione. Lo stato manutentivo è molto buono e l'ufficio risulta gradevolmente luminoso grazie alle ampie finestrature. Quattro posti auto scoperti in cortile sono disponibili a parte rispetto al canone richiesto. Nel raggio di 250 mt. Troviamo le fermate del tram n. ro 14 e bus n. ro 40. Tangenziali ed autostrade facilmente raggiungibili.

Conosciamoci di persona

via E. De Amicis 6
20900 Monza
Numero di telefono: +39 039/9008564 +39 039/9008564
Fax: null
Indirizzo e-mail:
Stampa | Mappa del sito
LB REAL ESTATE - Partita IVA 09207040966 - Numero rea 1903402
Camera di Commercio di Monza e Brianza